
Котел КВ 0.93 с РПК в Беларуси
Цена 975 000 рублей с НДС
Модель с ручной загрузкой топлива
Сброс золы и шлака производится поворотными опрокидывающимися колосниками
Дутье и тяга регулируются шиберами, поставляются в комплекте с котлом
Надежная работа котла обеспечивается изготовлением трубной системы из трубы сталь 10 повышенной прочности
Отапливаемая площадь помещения от 7100 до 10200 м2, объем от 21300 до 30500 м3. Температура воды до 115 С.
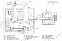
Марка котла | Котел КВ, Котел малой мощности | Габаритные размеры котельного блока, длина*ширина*высота, мм | 2740x1430x1750 |
---|---|---|---|
Вид топки | Топка РПК | Габаритные размеры котла с топкой, длина*ширина*высота, мм | 2740x1430x2150 |
Максимальная тепловая мощность, кВт | 930 | Масса, кг | 2700 |
Максимальная тепловая мощность, МВт | 0.93 | Тип котла | Водогрейный, Промышленный |
Максимальная тепловая мощность, Гкал | 0.8 | Расход топлива среднечасовой за отопительный сезон, кг/ч | 95 |
КПД (УГОЛЬ), не менее, % | 80 | Температура воды, °C | 70-95, 90-115 |
Аэродинамическое сопротивление, Па (мм. вод. ст.) | 290 | Тип отопительного котла | Твердотопливный |
Температура уходящих газов, °C | 200 | Бренд | HEATEXPERT |
Расход топлива при максимальной нагрузке котла (УГОЛЬ), кг/ч | 190 | Количество контуров | Одноконтурный |
Расход теплоносителя среды, м³/ч | 32 | Размещение | Напольный |
Расход условного топлива, кг/ч | 140 | Тип камеры сгорания | Открытый |
Отапливаемая площадь, м² | 7100-10200 | Управление | Электронное |
Отапливаемый объем, м³ | 21300-30500 | Принцип работы твердотопливного котла | Классический |
Топливо | Уголь, Твердотопливный | Энергонезависимый | нет |
Тяга | Уравновешенная | Тип питания | Трехфазное |
Низшая теплота сгорания топлива УГОЛЬ, кКал/кг | 5230 | Встроенный циркуляционный насос | нет |
Давление рабочей среды, МПа (кгс/cм²) | 0.3-0.6 | Встроенный расширительный бак | нет |
Гидравлическое сопротивление при перепаде t, МПа (кгс/cм²) | Не более 0.07 (0.7) | Энергоэффективность | Высокая |
Это устройство работает со вспомогательным оборудованием, которое приобретается отдельно. Если вы хотите сразу узнать стоимость всей установки, добавьте заинтересовавшие вас позиции в корзину. Чтобы точно расчитать стоимость доставки до вашего объекта, укажите его адрес в корзине и оправьте нам заявку. Обычно мы отвечаем в течение дня.



1
2
Водогрейный котел 0.93 с топкой РПК в г Беларусь. Характеристики:
- мощность 930 КВт, 0,93 МВт, 0,8 ГКал;
- максимальная температура 115 °С;
- топливо – каменный и бурый уголь;
- давление не более 0,6 МПа;
- отапливаемая площадь котла от 7100 до 10200 кв м, отапливаемый объем от 21300 до 30500 м3 (в зависимости минимальной температуры в регионе эксплуатации). Проверить или подобрать мощность котла для Беларуси или любого другого города вы можете по ссылке.
- устанавливается в котельных административных, производственных зданий и отопительных котельных ЖКХ.
Устройство и описание котла с топкой РПК
Конструкция котла состоит из двух блоков топки и конвективной части. В топку загружается и сжигается твердое топливо – уголь. Боковые и верхняя стенки топки котла выполнены из труб с вваренной стальной полосой. Горячие газы выходят из топки вверху топочной камеры и поступают в конвективные секции. Секции конвективных пакетов устанавливаются двумя блоками. Горячие газы из котельного блока выходят в задней части сверху.
Топка РПК состоит из колосниковой решетки. Решетка набирается из неподвижных и поворотных колосников. Заброс угля в топку производится вручную. На неподвижных колосниках происходит процесс горения топлива, на поворотные колосники вручную сдвигается шлак.
Конструкция котла с топкой РПК позволяет облегчить ручной труд кочегара.
Циркуляция котла 0.93 с РПК обеспечивает быстрый нагрев воды и выход на требуемую мощность. Локальные перегревы отдельных зон поверхностей нагрева исключаются точностью производимых расчетов гидравлики. Дренажи и воздушники производят дренирование трубной системы от шлама и удаление скапливающего воздуха.
Твердое топливо сгорает в топке. Горячие газы омывают трубную систему и нагревают воду до 115 °С.
Циркуляция воды в котельном агрегате производится циркуляционным насосом. Для восполнения теплоносителя, теряемого при дренировании и в теплосети, производится подпитка подпиточным насосом.
В котле с колосниками, очень важно не допускать горения угля в топке при выключенном вентиляторе, так как поступающий воздух охлаждает колосники. При выключенном вентиляторе, колосники могут деформироваться от перегрева и их нужно будет преждевременно менять.
Водогрейный котел 0,93 с РПК должен быть укомплектациятован автоматикой. Заводская автоматика ограничивает предельно допустимые параметры работы, температуру и давление воды, минимальный расход теплоносителя, поддерживает минимально допустимое разряжение.
Водно-химический режим водогрейного котла должен быть организован в соответствии с требованиями руководства по эксплуатации и нормативной литературы по тепловым энергоустановкам и тепловым сетям. Для подбора водоподготовительной установки требуется провести химический анализ воды.
Подключение котла с РПК
В зависимости от количества котельных агрегатов, наличия или отсутствия теплообменников существуют различные варианты схем подключения котла.
Все котельно-вспомогательное оборудование для подключения котла 0.93 МВт с топкой РПК в Беларуси вы можете купить на нашем котельном заводе. Также наш завод оказывает услуги по проектированию, монтажу, шеф монтажу и пуско-наладке котельных.
Безопасность котла
Безопасная эксплуатация котла обеспечивается выполнением требований
- Инструкции по эксплуатации
- Правил устройства и безопасной эксплуатации водогрейных котлов с температурой нагрева воды не выше 115 °С
- Правил технической эксплуатации тепловых энергоустановок
Требования к помещениям котельной регламентируются СП 89.13330.2016 «Котельные установки»
Водогрейный котел 0.93 с РПК должен управляться автоматикой безопасности, имеющей сертификат соответствия.
Одним из самых важных устройств, обеспечивающих безопасную эксплуатацию водогрейного котла, является предохранительный клапан. Расчет пропускной способности для каждой мощности приведен в паспорте котла.
Необходимые условия монтажа и эксплуатации котла 0.93 с РПК представлены в паспорте и руководстве по эксплуатации.
Гарантии изготовителя
На заводе изготовителе котел 0,93 с РПК подвергается гидравлическому испытанию давлением 0,93 МПа (9 кгс/см2).
Гарантийное обслуживание включает в себя бесплатное устранение скрытых заводских дефектов, замену деталей и узлов вышедших из строя в период гарантийного срока при условии монтажа и эксплуатации оборудования Покупателем в соответствии с его назначением, технической документацией, техническими нормами, правилами ввода в эксплуатацию и эксплуатации данного оборудования.
Срок эксплуатации водогрейного котла 10 лет.
Купить Котел КВ 0.93 с РПК в Беларуси
Промышленный водогрейный котел КВ-0,93 с РПК ( - мощность 0,93 МВт; - твердое топливо уголь; - температура 115 градусов; - отапливаемая площадь* от 7100 до 10200 м2; - отапливаемый объем* от 21300 до 30500 м3 (* диапазон для самого холодного и самого теплого региона РФ)); - применение для отопления производства, жилых зданий, цехов, складов, промышленных предприятий, теплиц, гаражей, больниц, школ, садов, для монтажа в блочно модульных котельных.
Предлагаем вам подобрать мощность водогрейного промышленного котла по отапливаемой площади и объему, с учетом типа строения и данных о температуре в регионе и в Беларуси, вида топлива.
Выбор водогрейного котла для котельной производится по каталогу отопительного оборудования нашего Котельного завода с помощью калькулятора подбора мощности. Водогрейные котлы отопления для промышленных предприятий предлагается выбрать из модельного ряда газовых, дизельных, мазутных, твердотопливных угольных и дровяных котлов, с ручными и автоматическими топками мощностью от 150 кВ до 4 МВт, и температурой нагрева теплоносителя до 115 градусов.
Подбор мощности водогрейного промышленного котла для отопления учитывает:
- температуру в самую холодную пятидневку в отопительный сезон. Для каждого региона РФ температура различна, данные берутся из СП 131.13330 «Строительная климатология»;
- тепло, необходимое для возмещения потерь тепла через ограждения, окна, двери здания и тепловые потери через не плотности строения и открываемые двери;
- температуру воздуха внутри помещений. Для различных типов и назначений строений она существенно отличается:
Тип отапливаемого строения | Температура внутри помещения |
---|---|
Жилые строения и административные здания | + 20 С° |
Больницы, детские сады | + 22 С° |
Учебные заведения, предприятия общепита, учреждения культуры, школы | + 16 С° |
Магазины и депо | + 15 С° |
Кинотеатры | + 14 С° |
Гаражи | + 10 С° |
Бани | + 25 С° |
- объем строения. Для определения наружного объема строения площадь по наружным стенкам строения на уровне первого этажа перемножается на высоту. Для панельных домов высота определяется: от уровня пола (нулевой отметки) до верхней плоскости теплоизоляционного слоя чердачного покрытия. Для остальных зданий высота определяется от уровня земли. Подбор мощности для отопления различных по назначению строений считается отдельно. Все полученные значения мощности складываются.
Подбор мощности водогрейного промышленного котла производится для общей суммарной мощности каждого отдельно стоящего задания.
Если вам требуется подобрать мощность котла в Беларуси для котельной с учетом вентиляции здания, горячего водоснабжения объекта, потерь в теплотрассе - необходимо производить более подробный расчет. Данный расчет мы можем произвести для вас бесплатно. Отправьте опросный лист и заявку на электронный адрес sale@kotel-kv.ru или позвоните по телефону 8 (800) 551-70-98.