
Пеллетный котел 500 кВт в Беларуси
Цена 1 230 000 рублей с НДС
Автоматика полностью контролирует работу и безопасность котла
Подача топлива осуществляется с контролем производительности по заданной температуре
Автономная система пожаротушения
Котел для площади помещения от 3900 до 5500 м2, отапливаемый объем помещения от 11500 до 16500 м3. Температура 115 градусов.
Марка котла | Котел КВм ДО, Котел малой мощности | Габаритные размеры котельного блока, длина*ширина*высота, мм | 1950х1600х2500 |
---|---|---|---|
Вид топки | Ретортная, Автоматическая | Габаритные размеры установки, длина*ширина*высота, мм | 3050х1600х2500 |
Максимальная тепловая мощность, кВт | 500 | Масса, кг | 2750 |
Максимальная тепловая мощность, МВт | 0.5 | Тип котла | Водогрейный |
Максимальная тепловая мощность, Гкал | 0.43 | Диапазон регулирования, % | 30-100 |
Топливо | Твердотопливный, Пеллеты | Диапазон регулирования теплопроизводительности, % | 150-500 |
КПД, не менее, % | 80 | Фракция дробления, не более, мм | 6-10 |
Аэродинамическое сопротивление, Па (мм. вод. ст.) | 130 | Расход топлива при максимальной нагрузке котла, кг/ч | 113 |
Расход уходящих газов, м³/ч | 2750 | Срок автономной работы до, суток | 1 |
Температура уходящих газов, °C | 220 | Срок автономной работы в среднем за отопительный сезон, суток | 8 часов |
Расход топлива среднечасовой за отопительный сезон, кг/ч | 65 | Срок автономной работы при максимальной нагрузке котла, ч | 5 |
Расход теплоносителя среды, м³/ч | 18 | Разряжение в топочной камере, Па (мм. вод. ст.) | 20-40 |
Расход условного топлива, кг/ч | 79 | Водяной объем котла, л | 520 |
Отапливаемая площадь, м² | 3900-5500 | Объем топочной камеры, м³ | 0.58 |
Отапливаемый объем, м³ | 11500-16500 | Объем штатного бункера, м³ | 0.8 |
Тяга | Уравновешенная | Объем штатного бункера (насыпная плотность 650 кг/м³), кг | 520 |
Низшая теплота сгорания топлива, кКал/м³ | 4900 | Размер топочной камеры, диаметр*глубина, мм | 900х1410 |
Влажность | 20 | Присоединительные размеры по водяному тракту, Ду | 65 |
Температура воды, °C | 55 - 115 | Присоединительные размеры газохода уходящих газов, ширина*высота / сечение, мм/м² | 600х200/0.12 |
Давление рабочей среды, МПа (кгс/cм²) | 0.15-0.3 (1.5-3) | Энергоэффективность | Высокая |
Гидравлическое сопротивление при перепаде t, МПа (кгс/cм²) | 0.07 (0.7) | Бренд | HeatExpert |
Это устройство работает со вспомогательным оборудованием, которое приобретается отдельно. Если вы хотите сразу узнать стоимость всей установки, добавьте заинтересовавшие вас позиции в корзину. Чтобы точно расчитать стоимость доставки до вашего объекта, укажите его адрес в корзине и оправьте нам заявку. Обычно мы отвечаем в течение дня.


Котел пеллетный автоматический 500 кВт с бункером
- мощность 500 КВт, 0,5 МВт, 0,43 ГКал;
- автоматическая подача древесных пеллет в топку;
- возможность работы в ручном режиме, для сжигания крупногабаритных древесных отходов;
- вихревая топка;
- температура нагрева воды 95 / 115 градусов;
- топливо – древесные пеллеты и древесные отходы;
- давление не более 0,6 МПа;
- отапливаемый объем от 11500 до 16500 м3 (в зависимости максимальной температуры в регионе эксплуатации). Проверить или подобрать мощность котла в вашем регионе вы можете по ссылке.
Отопительный котел на пеллетах автоматический 500 кВт применяется для сушильных камер, для теплиц, для производства, отопления промышленных помещений и зданий. Особенной популярностью данные модели пользуются у предприятий лесопереработки, деревоперерабатывающих предприятий и в сельском хозяйстве.
Твердотопливный котел на пеллетах 500 КВт устройство и описание
Котел твердотопливный на промышленных пеллетах 500 кВт изготавливается водотрубным стальным с вихревой топкой и автоматической шнековой подачей пеллет.
Конструкция котельной установки состоит из бункера для пеллетного котла, шнекового питателя, вихревой топки, котельного блока с конвективными пакетами.
Шнековый питатель подает топливные пеллеты и древесное топливо из расходного бункера в тепловой котел на пеллетах. Приводом питателя служит мотор редуктор. В конструкции шнекового питателя дополнительно предусмотрено воздушное охлаждение выходного узла, что препятствует возможности воспламенения топлива в питателе и увеличивает надежность работы.
Бункер для пеллет к котлу располагается на общей раме совместно с приводом питателя. Конструкция бункера под древесное топливо и узел соединения со шнековым питателем позволяет полностью опорожнять бункер за счет питателя топлива.
Водогрейный котел отопительный на пеллетах 500 кВт состоит из топочной камеры экранированной газоплотными сварными панелями с вертикальными трубами соединенных раздающими и собирающими коллекторами. Обмуровка выполняется из тепловой обшивки и декоративных листов. Выход газов осуществляется сзади и сверху топочного блока.
Котел отопления на пеллетах 500 кВт автоматический – принцип работы
Котел для отопления на пеллетах мощностью 500 кВт работает в полностью автоматическом режиме. Автоматика осуществляет автоматический розжиг, запуск, работу и остановку котла. Автоматика осуществляет подачу топлива с контролем производительности по заданной температуре теплоносителя. Подача воздуха осуществляется в зависимости от объема поданного древесного топлива. В котле на пеллетах из лузги подсолнечника предусмотрена автоматическая система пожаротушения в случае воспламенения топлива в топливопроводе.
Комплект автоматики состоит из щита управления котлом, контрольно измерительных приборов КИП и исполнительных механизмов.
Автоматическое регулирование работы промышленного котла российского производства на пеллетах мощностью 500 кВт включает в себя контроль и регулировку следующих параметров:
- разряжения в топочной камере;
- давления теплоносителя на выходе;
- температуры теплоносителя на выходе;
- содержания кислорода в дымовых газах;
- наличие давления в системе пожаротушения топливопровода;
- контроля факела;
- контроля минимального расхода теплоносителя.
На случай возникновения необходимости сжигания дополнительно крупногабаритных древесных отходов, автоматика комбинированного котла на пеллетах может переключиться в ручной режим работы и подача топлива осуществляется вручную через загрузочную дверку.
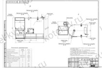
Схема подключения котла на пеллетах 500 кВт в котельной
Подключение и монтаж промышленного водогрейного котла на пеллетах 500 кВт с автоматической подачей пеллет производятся по проекту.
В зависимости от количества котельных агрегатов, наличия или отсутствия теплообменников существуют различные варианты схем подключения котла.
Один из вариантов схемы подключения твердотопливного котла 500 кВт для сжигания пеллет представлен на рисунке.
Купить котел на пеллетах 500 КВт в Беларуси и все необходимое для его подключения вы можете на нашем заводе. Также наш завод оказывает услуги по проектированию, монтажу, шеф монтажу и пуско-наладке котельных.
Преимущества производственного твердотопливного котла работающего на пеллетах
1. Работа котла отопительного на пеллетах происходит полностью в автоматическом режиме;
2. Для твердотопливного котла работающего на пеллетах возможно применение другого вида топлива: лузги, щепы, опилок;
3. Автоматическое пожаротушение топливоподачи;
4. Комбинированный котел на пеллетах работает с таким видом топлива как сырые опилки и древесные отходы высокой влажности (некоторые модели котлов на опилках не работают с древесным топливом влажностью более 20 %);
5. Вихревой режим горения обеспечивает максимальный дожиг топлива;
6. Незначительная стоимость сырья;
7. Экологическая чистота сырья как топлива.
Гарантии изготовителя
На заводе изготовителе промышленный российский котел на пеллетах 500 кВт с автоподачей подвергается гидравлическому испытанию давлением 0,9 МПа (9 кгс/см2).
Гарантийное обслуживание включает в себя бесплатное устранение скрытых заводских дефектов, замену деталей и узлов вышедших из строя в период гарантийного срока при условии монтажа и эксплуатации оборудования Покупателем в соответствии с его назначением, технической документацией, техническими нормами, правилами ввода в эксплуатацию и эксплуатации данного оборудования.
Срок эксплуатации водогрейного котла на пеллетах 10 лет. Котел имеет сертификат соответствия техническим регламентам ТР ТС 010, ТР ТС 032.
Действующая цена на котел на пеллетах 500 КВт в г Беларусь указана на сайте, производство котлов по техническому заданию завод осуществляет в течении 10-20 рабочих дней.
Купить пеллетный котел 500 квт в Беларуси
Промышленный водогрейный котел на пеллетах 500 кВт ( - мощность 0,5 МВт; - твердое топливо опилки; - температура 115 градусов; - отапливаемая площадь* от 3900 до 5500 м2; - отапливаемый объем* от 11500 до 16500 м3 (* диапазон для самого холодного и самого теплого региона РФ)); - применение для отопления производства, жилых зданий, цехов, складов, промышленных предприятий, теплиц, гаражей, больниц, школ, садов, для монтажа в блочно модульных котельных.
Предлагаем вам подобрать мощность водогрейного промышленного котла по отапливаемой площади и объему, с учетом типа строения и данных о температуре в регионе и в Беларуси, вида топлива.
Выбор водогрейного котла для котельной производится по каталогу отопительного оборудования нашего Котельного завода с помощью калькулятора подбора мощности. Водогрейные котлы отопления для промышленных предприятий предлагается выбрать из модельного ряда газовых, дизельных, мазутных, твердотопливных угольных и дровяных котлов, с ручными и автоматическими топками мощностью от 150 кВ до 4 МВт, и температурой нагрева теплоносителя до 115 градусов.
Подбор мощности водогрейного промышленного котла для отопления учитывает:
- температуру в самую холодную пятидневку в отопительный сезон. Для каждого региона РФ температура различна, данные берутся из СП 131.13330 «Строительная климатология»;
- тепло, необходимое для возмещения потерь тепла через ограждения, окна, двери здания и тепловые потери через не плотности строения и открываемые двери;
- температуру воздуха внутри помещений. Для различных типов и назначений строений она существенно отличается:
Тип отапливаемого строения | Температура внутри помещения |
---|---|
Жилые строения и административные здания | + 20 С° |
Больницы, детские сады | + 22 С° |
Учебные заведения, предприятия общепита, учреждения культуры, школы | + 16 С° |
Магазины и депо | + 15 С° |
Кинотеатры | + 14 С° |
Гаражи | + 10 С° |
Бани | + 25 С° |
- объем строения. Для определения наружного объема строения площадь по наружным стенкам строения на уровне первого этажа перемножается на высоту. Для панельных домов высота определяется: от уровня пола (нулевой отметки) до верхней плоскости теплоизоляционного слоя чердачного покрытия. Для остальных зданий высота определяется от уровня земли. Подбор мощности для отопления различных по назначению строений считается отдельно. Все полученные значения мощности складываются.
Подбор мощности водогрейного промышленного котла производится для общей суммарной мощности каждого отдельно стоящего задания.
Если вам требуется подобрать мощность котла в Беларуси для котельной с учетом вентиляции здания, горячего водоснабжения объекта, потерь в теплотрассе - необходимо производить более подробный расчет. Данный расчет мы можем произвести для вас бесплатно. Отправьте опросный лист и заявку на электронный адрес sale@kotel-kv.ru или позвоните по телефону 8 (800) 551-70-98.
комплект